
Grenoble 134, Chișinău












GRENOBLE RESIDENCE în GRENOBLE RESIDENCE
GRENOBLE RESIDENCE
Un Complex Nou de calitate compus din 4 blocuri cu 12 nivele, apartamente de 1-3 odăi , cît și Penthouse cu 3-5 camere
Complexul Solomon Grenoble Residence este construit într-o zonă verde,ecologică a sectorului Botanica, cu infrastructură nouă, școală, grădiniță, centru pentru tineret, spații comerciale;
-Structura din beton monolit (grinzi, coloane, diafragme și planșee), piloni de 300 mm, planșee 200 mm, constructiv ce asigură stabilitate ridicată, nivel redus de vibrații și zgomot.
- Are o fațadă modernă, practică, fiind o fațadă ventilată din ceramogranit, durata de viața peste 50 ani, fără costuri de reparație! Sistemul de fațadă ventilată termoizolată cu vată minerală este cel mai efectiv sistem de termoizolare: vata minerală de 100 mm pur ecologică fixată mecanic, (nu pe adeziv) + membrană de protecție antivînt, fixată mecanic, ce permite aerisirea fațadei, formînd un schimb de aer și o microclimă favorabilă – (nu este acoperită de cleiuri, vopseli sau tinkuri ce conservează mișcările, schimburile de aer);
- Structura din beton monolit, tip planșee/piloni ( grinzi și coloane vizibile);
- Zidăria din blocuri ceramice(Brikston, Porotherm sau similare) 240 mm.
- Grosimea pereților: - Pereți exteriori 240 mm + termoizolare;- Pereți interiori între apartamente 200 mm;- Pereți interiori între camere 115 mm.
- Geamurile vor avea următoarele caracteristici de bază: -Panoramice;- Profil PVC cu 5 camere, seria 72 și în sus(în dependență de tipul confecției);- Termopan cu 3 sticle, cu efect special(eficiență energetică);
- Înălțimea tavanelor în apartamente 2850 mm;
- Cazan pe gaz de 24 kw, Schimbător de căldură bitermic;
- Ușa metalică de clasa Premim, 3 contururi de etanșare, termoizolată cu vată minerală, tocul termoizolat, placată cu panouri MDF pe ambele părți;
- Ascensor clasa premium, finisări de întaltă calitate(inox, oglindă, piatră), silențios, viteză mare;
CALITATE ÎN CONSTRUCȚIE
Construit pentru a se integra în armonia naturii, complexul promite o viață înconjurată de spații verzi, cu acces la facilități moderne, toate în inima sectorului Botanica.
DURABILITATE ȘI EFICIENȚĂ
O fațadă inovatoare, termoizolată cu vată minerală și finisaje de ceramo-granit, asigură durabilitate peste 50 de ani și costuri minime de întreținere.
CONFORT ȘI CONVENIENȚĂ
Infrastructura de nouă generație, inclusiv educațională și comercială, oferă un stil de viață îmbunătățit, aducând necesitățile cotidiene mai aproape de casă.
Darea in exploatare simestrul 2 , anul 2025.
Prețurile in dependență de modul de achitare !
Pentru 1,2, 3 camere prețul incepe de la 1500 euro la achitarea integrală
Pentru Penthouse prețul la achitarea integrală constituie 1800 euro.
Prețul poate fi diferit în cazul achitării parțiale , rugăm concretizați .
Se oferă posibilitatea de achitare in etape
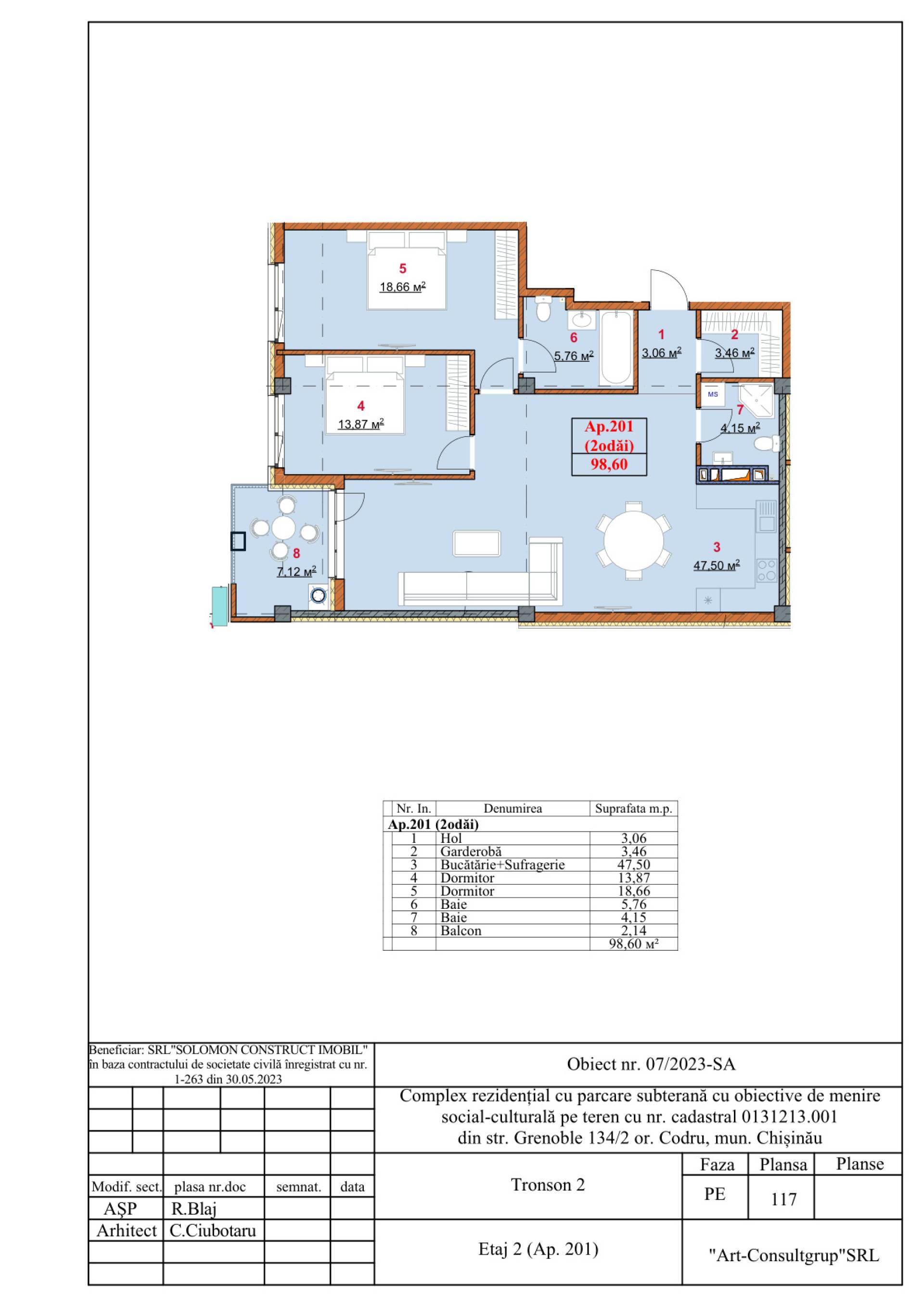
| ID-ul proprietății | 4446 |
| Preț | 113640 € |
| Preț pentru m2 | De la 1500 € |
| Suprafața | 75.76 m2 |
| Odăi | 2 |
| Băi | 2 |
| Stare imobil | Variantă albă |
| Mobilat/Nemobilat | Nemobilat |
| Structura blocului | Monolit |
| Dare în exploatare | 2026 |
| Etajul | 5 |
| Numărul total de etaje | 12 |

Copyright © 2026 Proiecte Noi. Toate drepturile rezervate.
Made with by Nicolae Casîr