













Darea în exploatare
2027Odăi
1-3Suprafața (m2)
34-83Etaje
12Solomon lansează un nou complex rezidențial pe strada Ialoveni – un bloc modern cu 12 etaje, construit la cele mai înalte standarde de calitate. Fațada ventilată din ceramogranit garantează durabilitate de peste 50 de ani, fără costuri de reparații, iar termoizolarea cu vată minerală oferă eficiență energetică și un climat interior sănătos. Complexul include spații comerciale la parter și parcare subterană, pentru siguranța și confortul locatarilor. Apartamentele sunt luminoase, funcționale și proiectate inteligent – alegerea ideală pentru o viață modernă.
Accesibilitate Urbană
Situat pe strada Ialoveni, într-o zonă liniștită și retrasă de agitația orașului, Solomon Favorit 2 oferă acces rapid la infrastructura esențială – transport, grădinițe, școli și zone comerciale. O locație echilibrată între liniște și conectivitate urbană.
Estetică Modernă
Blocul cu 12 etaje se remarcă prin fațada ventilată din ceramogranit, cu durată de viață de peste 50 ani și un aspect mereu proaspăt. Apartamentele luminoase și spațioase îmbină designul modern cu funcționalitatea, creând un cămin elegant și confortabil.
Confort Comunitar
Complexul dispune de spații comerciale la parter și parcare subterană pentru fiecare apartament proiectat. Accesul pe tot perimetrul blocului și zonele de utilitate sunt gândite pentru siguranța și comoditatea locatarilor, oferind un stil de viață modern și echilibrat.
Din ce e construit?
Structura din beton monolit (grinzi integrate, coloane, diafragme și planșee)
Zidăria din BCA 240mm.
Grosimea pereților
Structura din beton monolit (grinzi integrate, coloane, diafragme și planșee)
Geamurile marca grosime
Geamurile vor avea următoarele caracteristici de bază:
Panoramice;
Profil PVC cu 5 camere, seria 72 și în sus(în dependență de tipul confecției);
Termopan cu 3 sticle, cu efect special(eficiență energetică);
Înălțime tavane
Apartamente 2900 mm;
Ce tip de cazan?
Cazan pe gaz de 24 kW;
Schimbător de căldură bitermic;
Ce fel de uși la întrare?
Ușa metalică de clasa Premium
3 contururi de etanșare;
Termoizolată cu vată minerală
Tocul termoizolat
Placată cu panouri MDF pe ambele părți
Garanția min 2 ani;
Holurile și scările? (tipul de prelucrare și tipul de acoperire)?
Pereți finisați cu tencuieli decorative
Pardoseli și scări ceramică.
Tipul rețelelor?
Apa/Canalizarea: montarea coloanelor și a nodurilor primare de racordare la apa caldă și rece, canalizare (coloanele până la prima ramificație)+branșarea la rețele orășenești;
Încălzire: montarea sistemului de încălzire complet funcțional, cazan pe gaz 24 kW, țevi și fitinguri PPR/PE, radiatoare în încăperi (la nivelele P și E), inclusiv racordurile pentru uscătoarele de prosoape în baie și WC;
Electricitate: instalarea rețelelor de energie electrică (I ciclu) – montarea tuburilor de protecție gofrate/PE, cablurilor electrice, panoului electric central cu aparate de protecție, dozelor pentru întrerupătoare și prize
Rețele de tensiune joasă: montarea nodurilor de conectare la telefon și internet în panou (I – ciclu - tuburi de protecție pentru cabluri);
Rețele de gaz: montarea sistemului de gazificare conform proiect de execuție, racordat la cazan/;
Contorizare: instalarea contoarelor: de apă(vânzătorul), de energie electrică și gaz(furnizorul serviciului).
Ascensor ?
Clasa Premium, finisări de înaltă calitate(inox, oglindă, piatră), silențios, viteză mare.
Fațadă?
Ventilată 100%, Ceramogranit cu elemente de decor din compozit, termoizolată cu vată minerală de 100 mm
Locuri de parcare
Complexul dispune de parcare subterane
Teren de joacă ?
Va fi amenajat în preajma blocului
Amenajare externa ?
Va fi amenajată adiacența blocului cu elemente arhitecturale, bănci, locuri de recreere, copaci, gazon, arbuști
Avantajele complexului
Are o fațadă modernă, practică, fiind o fațadă ventilată din ceramogranit, durata de viața peste 50 ani, fără costuri de reparație! După o simplă spălare are același aspect ca și 10 ani în urmă, nu crapă, nu se decolorează. Sistemul de fațadă ventilată termoizolată cu vată minerală este cel mai efectiv sistem de termoizolare: vata minerală de 100 mm pur ecologică fixată mecanic, nu pe adeziv + membrană de protecție antivînt, fixată mecanic, ce permite aerisirea fațadei, formînd un schimb de aer și o microclimă favorabilă – nu este acoperită de adezivi, vopseli sau tinkuri ce conservează mișcările, schimburile de aer;
Este un bloc locativ construit într-o zonă liniștită, retras de zgomotul orașului, dar cu acces imediat la toată infrastructura orașului, grădinița și școala alături;
Are acces pe tot perimetrul blocului locativ;
COMPLEXUL Solomon Favorit 2
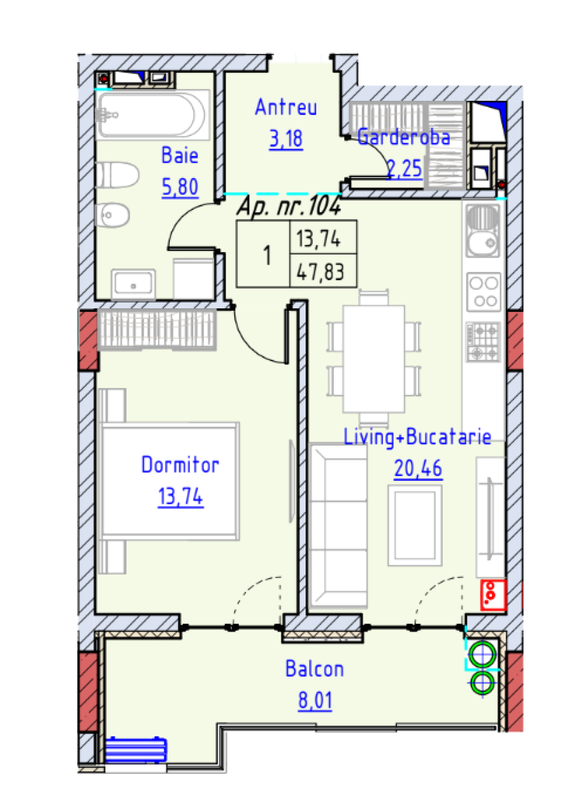
Apartamente cu 1 odaie: 34-51 m2
Apartamente cu 2 odăi: 63-65 m2
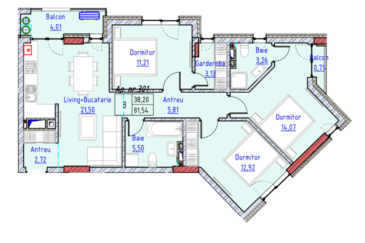
Apartamente cu 3 odăi: 83 m2
Prețul depinde de mai mulți factori, prima rata , căte odăi, sau etapa de construcție .
La moment lansării prețul incepe de la 1150 euro la achitarea integral.
Vă rugăm consultați un specialist , prețul poate fi mai mare , disponibilitatea poate să se schimbe.
| Preț | de la 1150 €/m2 | 
| Structura blocului | BCA | 
| Starea | Variantă albă | 
| Darea în exploatare | 2027 | 
| Apartamente rămase | 70 | 
| Oraș | Chișinău | 
| Sector | Telecentru | 
| Adresa | Ialoveni 104 | 
| septembrie 2025 | 1150 € | 
| octombrie 2025 | 1150 € | 
Bine de știut.
            Toate prețurile sunt direct de la constructor. 
            De regulă, odată cu evoluția construcției, prețurile apartamentelor se măresc de la 25% până la 50%.
            Vă recomandăm să investiți într-un bloc locativ de la cele mai bune companii de construcții.
            
 Dacă aveți nevoie de suport, vă rugăm să ne contactați: +373 78 87 79 97
Vedeți planurile disponibile pentru acest proiect




















Completați forma de mai jos și un expert vă va contacta în cel mai scurt timp.
Copyright © 2025 Proiecte Noi. Toate drepturile rezervate.
Made with by Nicolae Casîr